
船津小学校の建て替えについては、不要な土地の購入などの問題点を、議会内外で追及してきました.
一方で、原因不明の雨漏りなど、老朽化が著しい校舎、狭いグラウンドの解消などの問題解決も求められています。
そこで、今号では、船津小学校の建て替えの進捗と今後の計画について、ご紹介したいと思います。
2015年に設置された船津小学校建設検討委員会での検討の結果、現在の場所への建て替えが決定しています。
その際、北側に学校用地を拡幅し、現在の北校舎、南校舎などを1つにまとめることで、グラウンドを広く確保することになっています。
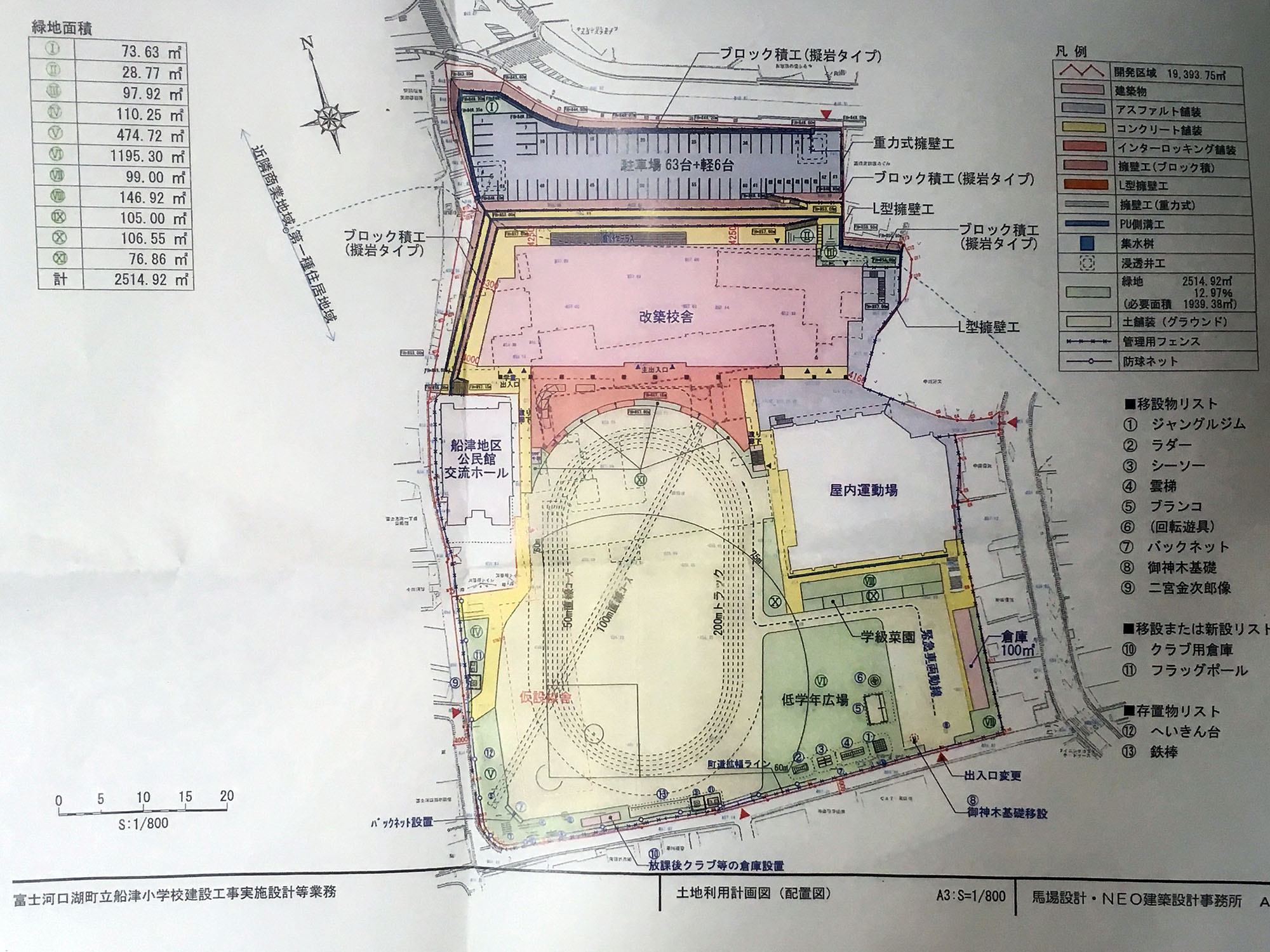
なお、下記に、建て替え後の配置図を掲載しました。
(変更の場合あり)
2018年
3月~ 北側用地(駐車場)第1期造成
3月~ 西側に仮設校舎建設
夏休み 北校舎等から仮設校舎への引っ越し
7月~ 北校舎・東校舎・船津地区公民館解体
2019年
1月~ 新校舎建設
12月~ 北側用地(駐車場)第2期造成
2020年
3月 新校舎完成
春休み 仮設・南校舎から新校舎へ引っ越し
4月~ 南校舎・給食棟解体、仮設校舎の撤去
8月~ 外構工事など
2021年
3月 すべての工事が完了
町学校教育課によれば、船津小学校建て替えに関わるすべての費用の試算額は34億円です。そのうち、2018年度当初予算では、新校舎建設の一部、北校舎解体などの費用として、4億9048万円が計上されています。
財源は、国庫補助金、合併特例事業債、船津財産区補助、町債などが見込まれています。
【放課後児童クラブ】
2017年2月の検討委員会から、私も検討委員のメンバーとなり、様々な意見を発言してきました。
その1つが放課後児童クラブのスペース確保についてです。
いままで船津地区公民館で行っていた船津地区の放課後児童クラブは、新たに、新校舎の西側に部屋が設置されることになります。
3つに分かれている船津の児童クラブですが、当初の設計図では、部屋が2つしか確保されていませんでした。
放課後児童クラブの職員にも話を伺い、「3つの部屋の確保が必要」と意見を述べ、その通りに改善されました。
学校の周辺道路の拡幅についての要望もその都度、町学校教育課に伝えてきました。
観光客の通行が増えている北側の歩道、そして、南側の道路が拡幅されることになりました。
また、体育館の南側で行われている御神木の場所確保についても求め、基本的にはいままで通り場所が確保されることになりました。
この間、町が行ってきた大規模工事では、工事完成後に、使い勝手の悪い場所が発覚することが度々ありました。
そのようなことのないよう、学校はもちろん、保護者、地域住民に繰り返し説明し、みなさんの声を聞きながら、設計や工事を進めるよう、求めてきました。
今後も、みなさんのご意見やご要望を、町や教育委員会などに伝えていきますので、お気軽に声をお寄せください。

上の図だけを下に大きくしました。

∞------∞------∞------∞------∞------∞------∞------∞------∞------∞------∞

雇用、中小企業の資金繰り、医療・福祉の困りごと、生活保護、教育、子育て支援、農業など…1人で悩まず、ご相談ください。
連絡先は次のとおりです。
山下利夫 TEL・FAX 0555-72-3574
